
CASA
REGISTRO
SÃO PAULO - BRAZIL
A Casa Registro é o resultado de um conjunto harmônico de volumes entrelaçados entre si que produzem um mosaico de luz e sombra, transparência e opacidade. Onde espaços internos e externos interagem como um só ambiente.
Há uma simbiose permanente entre a vegetação, a luz e os elementos construídos que proporcionam sucessivas cenas surpreendentes em suas nuances sem interrupções.
O concreto e o abstrato se fundem e as metáforas se multiplicam; assim, a casa oferece múltiplas situações e cada uma delas provoca uma nova sensação.
O cenário do encontro se oferece naturalmente.
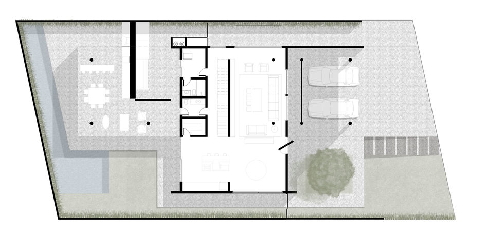
A área social térrea é composta por estar, jantar, cozinha gourmet, lavabo e churrasqueira com cozinha externa. O primeiro pavimento abriga os quartos, escritórios e a biblioteca da família. A academia e o estúdio de música ficam no segundo pavimento que também oferece a paisagem 360° do entorno.
Veja mais em archdaily.com.br
fotógrafo
EDUARDO MACARIOS
















































